
01/06


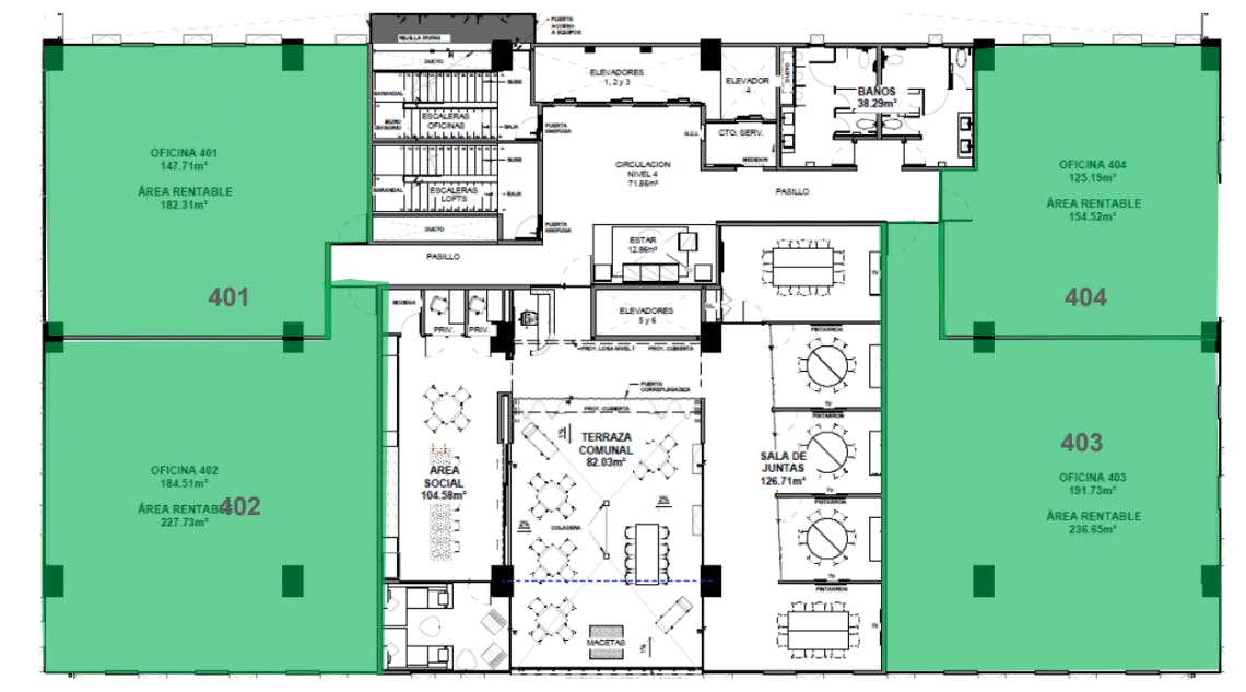
Bravante - Oficinas - Oficina 404
Oficina en renta de $478.5/m² MXN
155 m²
Oficina en Renta en Av. México 3016, Oficina 404, Guadalajara, Jalisco
Descripción del inmueble
Se renta oficina de 155 metros cuadrados en Av. México, colonia Residencial Juan Manuel, Guadalajara. Este espacio ofrece un ambiente ideal para tu negocio, con amplias áreas de trabajo, excelente iluminación natural y una ubicación privilegiada. Disfruta de comodidades modernas y un diseño funcional que se adapta a tus necesidades. No pierdas la oportunidad de establecer tu empresa en esta excelente ubicación.
Precios de la oficina
MXN
USD
Tipo de operación
Renta
Precio de renta
$478.5/m² MXN
Mantenimiento
15%
Dirección del espacio
Av. México 3016, Guadalajara , Jalisco , CP. 44680
Características del inmueble
Tipo de propiedad
Oficinas
Área total
155 m²
Status
En construcción
Área mínima divisible
155 m²
Tamaño de piso promedio
693 m²
¿Te gustaría compartir este espacio con tus clientes o colaboradores?
Datos de Zona
Poblacionales, distribución de sectores económicos, niveles socioeconómicos y más
Creado: 04/11/2025
Última actualización: 04/05/2026
















