
01/06


Bravante - Oficinas - Nivel 501- 504
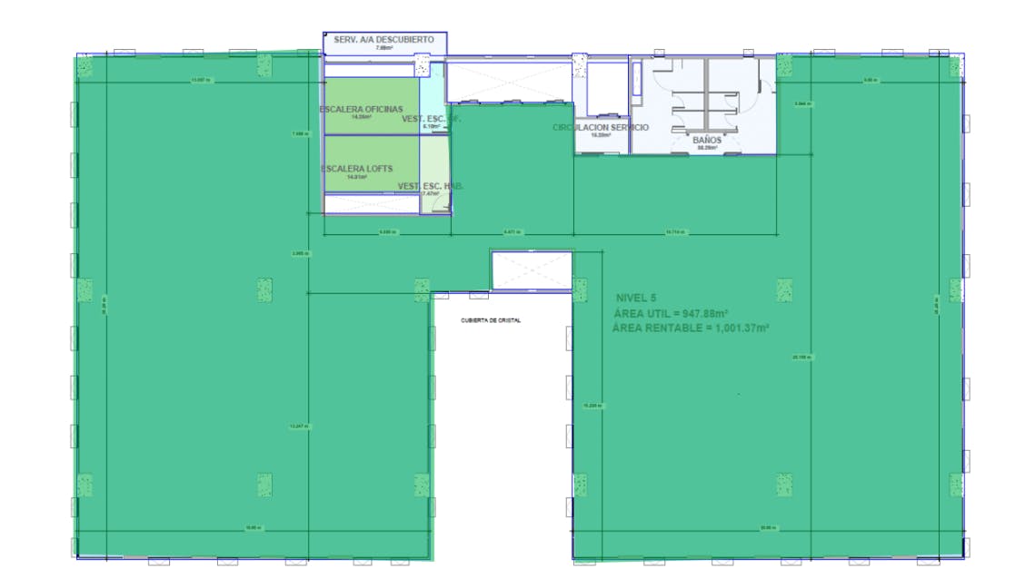
Oficina en renta de $479.7/m² MXN
1,002 m²
Oficina en Renta en Av. México 3016, Nivel 501- 504, Guadalajara, Jalisco
Descripción del inmueble
Renta una amplia oficina de 1002 metros cuadrados en Av. México, colonia Residencial Juan Manuel, Guadalajara. Este espacioso inmueble cuenta con excelentes amenidades que garantizan comodidad y funcionalidad para tu empresa. Ubicado en una zona privilegiada, ofrece acceso a servicios cercanos y un entorno idóneo para el desarrollo de tu negocio. No pierdas la oportunidad de establecer tu oficina en este destacado espacio.
Precios de la oficina
MXN
USD
Tipo de operación
Renta
Precio de renta
$479.7/m² MXN
Mantenimiento
15%
Dirección del espacio
Av. México 3016, Guadalajara , Jalisco , CP. 44680
Características del inmueble
Tipo de propiedad
Oficinas
Área total
1,002 m²
Status
En construcción
Área mínima divisible
155 m²
Tamaño de piso promedio
693 m²
¿Te gustaría compartir este espacio con tus clientes o colaboradores?
Datos de Zona
Poblacionales, distribución de sectores económicos, niveles socioeconómicos y más
Creado: 04/11/2025
Última actualización: 04/05/2026
















