
01/06


Bravante - Oficinas - Nivel 301-305
Oficina en renta de $479.7/m² MXN
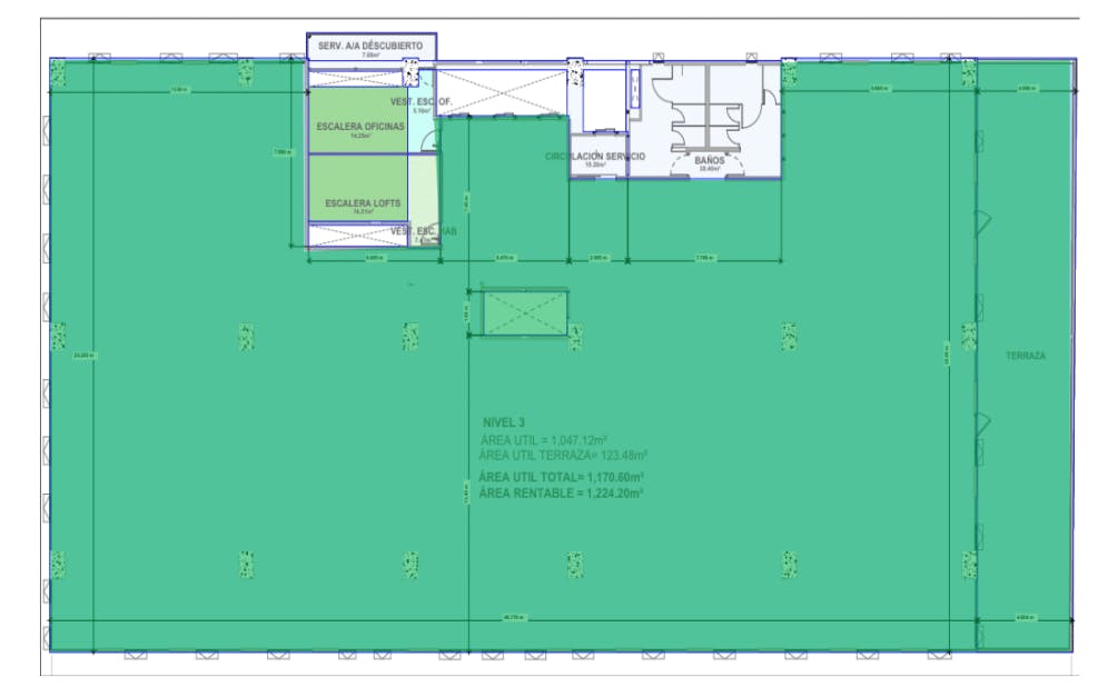
1,225 m²
Oficina en Renta en Av. México 3016, Nivel 301-305, Guadalajara, Jalisco
Descripción del inmueble
Oficina de 1225 metros cuadrados en renta, ubicada en la Av. México, colonia Residencial Juan Manuel, Guadalajara. Este espacio ofrece características ideales para tu negocio, incluyendo amplias áreas de trabajo e instalaciones modernas. Aprovecha esta oportunidad para establecer tu empresa en una ubicación estratégica y con fácil acceso. Ideal para corporativos que buscan un entorno profesional y cómodo.
Precios de la oficina
MXN
USD
Tipo de operación
Renta
Precio de renta
$479.7/m² MXN
Mantenimiento
15%
Dirección del espacio
Av. México 3016, Guadalajara , Jalisco , CP. 44680
Características del inmueble
Tipo de propiedad
Oficinas
Área total
1,225 m²
Status
En construcción
Área mínima divisible
155 m²
Tamaño de piso promedio
693 m²
¿Te gustaría compartir este espacio con tus clientes o colaboradores?
Datos de Zona
Poblacionales, distribución de sectores económicos, niveles socioeconómicos y más
Creado: 04/11/2025
Última actualización: 04/05/2026
















