
01/05


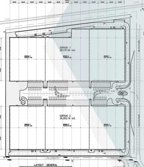
Escobedo 3 - Modulo 1
Nave Industrial en renta de $101.3/m² MXN
9,711 m²
Nave Industrial en Renta en Cjon. de los Tijerina N/A, Modulo 1, General Escobedo, Nuevo León
Descripción del inmueble
Se renta bodega industrial de 9,711 m² en Cjon. de los Tijerina, colonia Parque Industrial Escobedo, General Escobedo. Esta ubicación estratégica mejora la logística de su empresa. La bodega cuenta con amplios espacios, buena iluminación, acceso a vías rápidas y servicios adecuados para operaciones industriales. Ideal para empresas que buscan optimizar su cadena de suministro y operaciones. Contáctenos para más detalles.
Precios de la nave industrial
MXN
USD
Tipo de operación
Renta
Precio de renta
$101.3/m² MXN
Mantenimiento
$3.5/m² MXN
Dirección del espacio
Cjon. de los Tijerina N/A, General Escobedo , Nuevo León , CP. 66062
Características del inmueble
Tipo de propiedad
Industrial
Área total
9,711 m²
Techumbre
KR-18
Condición de la propiedad
Acondicionado
Altura libre
11.5 m
Año de construcción
2025
Status
Terminado
Área mínima divisible
8,124 m²
Luz Natural
5 %
Sistema contra incendios
Extintores
¿Te gustaría compartir este espacio con tus clientes o colaboradores?
Datos de Zona
Poblacionales, distribución de sectores económicos, niveles socioeconómicos y más
Creado: 04/09/2025
Última actualización: 25/02/2026
















