
01/13


Escobedo 3 - Edificio 2
Nave Industrial en renta de $88.7/m² MXN
26,352 m²
Nave Industrial en Renta en Cjon. de los Tijerina N/A, Edificio 2, General Escobedo, Nuevo León
Descripción del inmueble
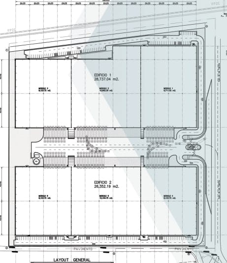
Nave industrial en renta de 55,089 m², con altura libre de 10.05 m, bahías de 1,000 m², piso de concreto de 6”, 55 andenes de carga, 6 rampas de acceso y 133 cajones de estacionamiento. Construcción 2024/2025 con muros de concreto aislado, techo KR18 con aislamiento R10, iluminación natural al 5% y oficinas a la medida. Ubicada en terreno de 86,057 m² con módulos divisibles.
Precios de la nave industrial
MXN
USD
Tipo de operación
Renta
Precio de renta
$88.7/m² MXN
Mantenimiento
$3.5/m² MXN
Dirección del espacio
Cjon. de los Tijerina N/A, General Escobedo , Nuevo León , CP. 66062
Características del inmueble
Tipo de propiedad
Industrial
Área total
26,352 m²
Techumbre
KR-18
Condición de la propiedad
Acondicionado
Altura libre
11.5 m
Año de construcción
2025
Status
Terminado
Cajones de estacionamiento
133
Área mínima divisible
8,124 m²
Luz Natural
5 %
Sistema contra incendios
Rociadores
Amenidades
¿Te gustaría compartir este espacio con tus clientes o colaboradores?
Datos de Zona
Poblacionales, distribución de sectores económicos, niveles socioeconómicos y más
Creado: 04/09/2025
Última actualización: 25/02/2026
















